Hohenahr / Erda: Vielseitige Gewerbehalle – ideal für Handel, Studio oder Lager

Lage: 35644 Hohenahr / Erda | Hessen
Straßenansicht
Straßenansicht
Straßenansicht
Parkplätze
Parkplätze
Halle
Halle
Halle
Halle
Halle
Halle
Halle
Halle
Halle
Eingangsbereich
Büro
Büro
Dusche
WC
WC

Beschreibung

Zur Neuvermietung steht eine vielseitig nutzbare Gewerbehalle in Hohenahr-Erda, die in Massivbauweise errichtet wurde. Die Immobilie wurde ursprünglich als Getränkemarkt betrieben und war zuletzt als Fitnessstudio vermietet und in Betrieb – ideal also für unterschiedlichste gewerbliche Nutzungskonzepte, je nach Bedarf und Ausbau.

Die Halle verfügt über zwei separate Eingänge, wodurch sich Kunden- und Personalzugänge bzw. unterschiedliche Nutzungsbereiche gut voneinander trennen lassen. Im Inneren ist eine separate Unterteilung für einen Empfangsbereich vorhanden. Ergänzend steht ein großer, separater Raum zur Verfügung, der sich flexibel als Verkaufs-, Trainings-, Lager- oder Produktionsfläche nutzen lässt. Für den täglichen Betrieb sind Nasszellen sowie getrennte WC-Anlagen vorhanden. Abgerundet wird das Angebot durch ausreichend Parkplätze direkt am Objekt – ein klarer Vorteil für Kundenverkehr, Mitarbeitende oder Lieferanten.

Energieausweisdaten:

Energieausweis: Bedarfsausweis (Nichtwohngebäude), Endenergiebedarf Wärme 401,8 kWh/(m²·a), Endenergiebedarf Strom 13,3 kWh/(m²·a), Primärenergiebedarf 440,9 kWh/(m²·a), Energieträger Heizöl EL, Baujahr 1996, gültig bis 08.10.2035.

Ausstattung

Die Gewerbehalle ist in Massivbauweise errichtet und mit isolierverglasten Kunststofffenstern ausgestattet. Eine WC-Anlage sowie eine Nasszelle sind vorhanden und runden die funktionale Ausstattung ab. Die Beheizung erfolgt über eine Öl-Zentralheizung. Strom- und Heizkosten werden verbrauchsabhängig abgerechnet und kommen zusätzlich zur Kaltmiete hinzu.

Lage und Verkehrsanbindung

Die Gewerbehalle liegt in Hohenahr (PLZ 35644), Ortsteil Erda, im Lahn-Dill-Kreis in Mittelhessen. Die Lage im ländlich geprägten Umfeld verbindet ein angenehmes Arbeitsumfeld mit guter Erreichbarkeit für Kunden, Mitarbeitende und Lieferverkehr. Die umliegenden Mittelzentren sind schnell erreichbar – insbesondere die Städte Wetzlar, Gießen und Herborn. Über die nahegelegenen Verkehrsachsen und die Anbindung an das Autobahnnetz (u. a. Richtung A45/A480) ist auch die überregionale Erreichbarkeit gewährleistet. Damit eignet sich der Standort gleichermaßen für Dienstleistung, Lager, Produktion oder publikumsintensive Nutzungen, die eine gut angebundene, aber nicht innerstädtische Lage schätzen.

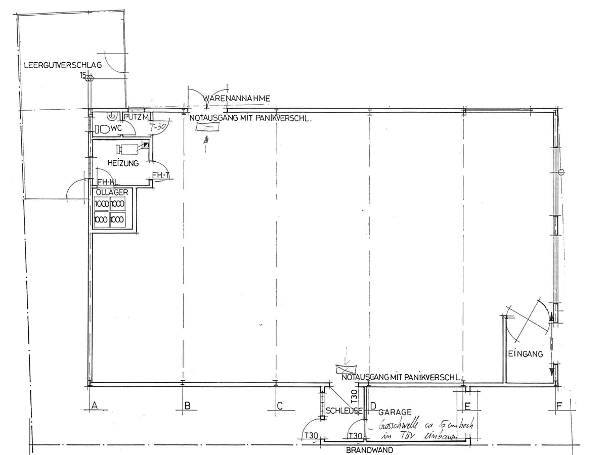
Lagepläne

Plan 0

Fakten

Objektnummer:
10853
Objekttyp:
Lager
Lagerfläche:
340 m²
Gesamtfläche:
340 m²
Baujahr:
1996
Zustand:
Gepflegt
Verfügbarkeit:
Verfügbar

Preisdetails

Nettomiete:
1.900,00 €
Bruttomiete:
1.900,00 €
Gesamtmiete:
2.100,00 €
Betriebskosten:
200,00 €
Kaution:
3.800,00 €
Provision:
2 Nettomonatsmieten zzgl. gesetzl. MwSt.
Betriebskosten netto:
200,00 €

Energieeffizienz

Endenergiebedarf:
401.80 kWh/(m²*a)
Stromwert:
13.30
Wesentliche Energieträger:
Oel
Wärmewert:
401.80
Baujahr laut Energieausweis:
1996
Ausstellung:
ab dem 1.5.2014
Energieausweisart:
Energiebedarfsausweis
Gültig bis:
08.10.2035

Ansprechpartner

Patrick  Rühl
Anfrage
Max. 500 Zeichen
Ich habe die Datenschutzvereinbarung gelesen und verstanden, und ich stimme der Verarbeitung meiner persönlichen Daten wie darin beschrieben zu. *